68 dzīvokļi
Pasta iela 6
40m2 – 95m2

Par projektu

“Pastnieku nams” ir jauns dzīvokļu projekts, kas atrodas pašā Vecrīgas malā ar ainavisku skatu uz Rīgas vizītkartēm – Daugavu, Centrāltirgus paviljoniem un Pēterbaznīcu. Tā ir vēsturiska ēka, kurai, dzīvokļus renovējot, svaigu elpu devis pieredzējis vēsturisku ēku atjaunotājs, celtniecības uzņēmums “Anzāģe”, kam ir nevainojama reputācija. 

Skatīt plānus

Dzīvokļi

“Pastnieku namā” pieejami 86 pilnībā mēbelēti un aprīkoti studio tipa dzīvokļi platībā no 15 līdz 30 m². Dzīvokļi būs lieliski piemēroti izīrēšanai īstermiņā vai izīrēšanai studentiem, pat neskatoties uz to, ka ēkā nav pieejams lifts.

Skatīt plānu

Interjers

“Pastnieku nama” dzīvokļi ir moderni, gaiši un aprīkoti ar visām nepieciešamajām mēbelēm un iekārtām. Lai radītu unikālāku interjeru, gultas, virtuves iekārta un logi ir ražoti tepat Latvijā, tāpat arī ēkas pārbūvē izmantotie būvmateriāli. 

Skatīt plānu

Dzīvoklis Nr. 49

Gaišs, moderns un pilnībā aprīkots studio tipa dzīvoklis ar skatu uz Daugavu. Interjerā izmantotas mēbeles un virtuves iekārtas, kas ražotas Latvijā. Dzīvokļi pieejami platībā no 15 līdz 25 m².

Dzīvoklis Nr. 50

Dzīvokļu aprīkošanā ir izmantoti īstermiņa īrei optimālie risinājumi mēbelēm, dizainam un aprīkojumam.

Dzīvoklis Nr. 51

Dzīvokļu aprīkošanā ir izmantoti īstermiņa īrei optimālie risinājumi mēbelēm, dizainam un aprīkojumam.
 

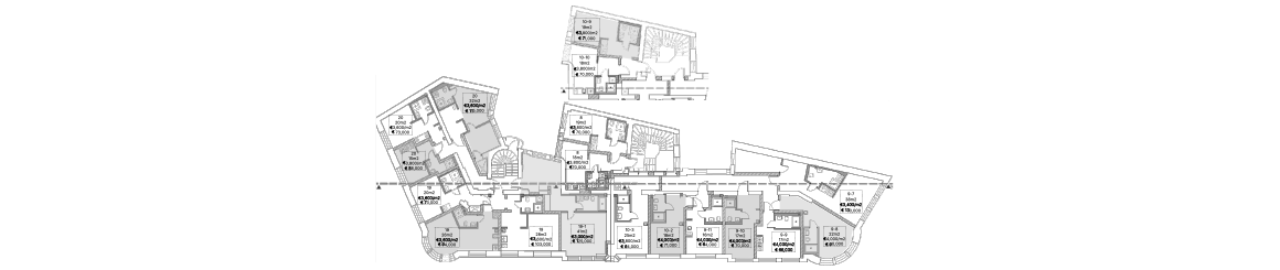
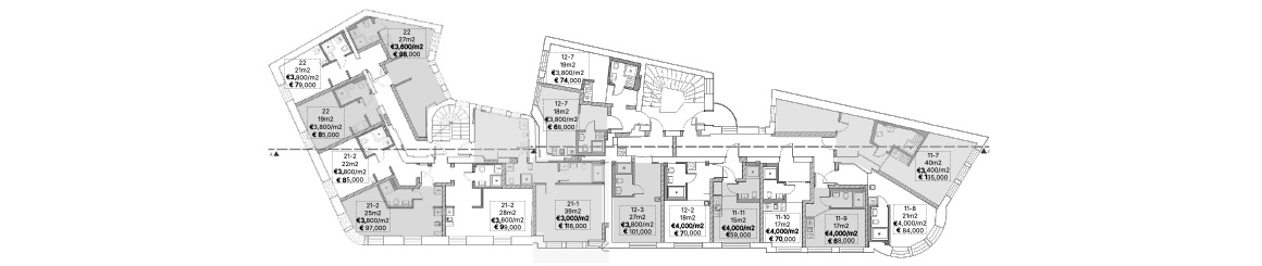
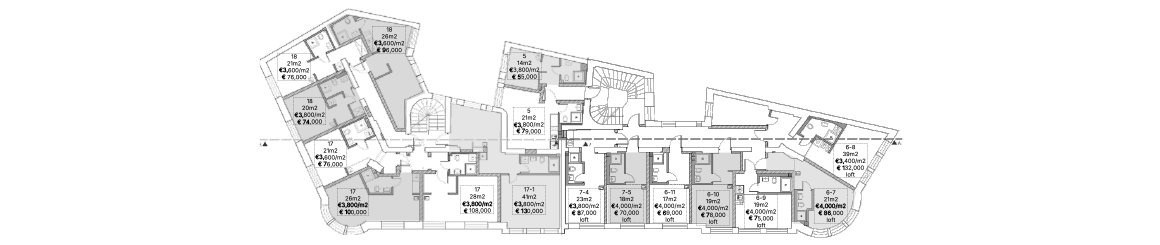
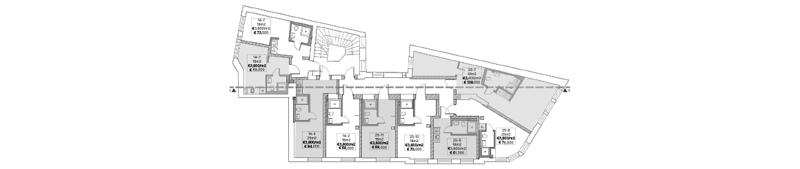
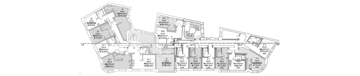
Stāvu plāni

Izpēti “Pastnieku nama” dzīvokļu plānojumus un atrodi sev vēlamo iegādei. Pieejami studio tipa dzīvokļi platībā no 15 līdz 25 m² un divistabu (vienas guļamistabas dzīvokļi) platībā no 30 līdz 40 m². 

Atsevišķos ēkas (1., 2., un 3.) stāvos griestu augstums ir 3,3–3,6m un dzīvokļi ir aprīkoti ar papildu gultasvietām otrajā līmenī jeb tā saucamajiem “loftiem”, ļaujot 20 m² dzīvoklī izmitināt četrus viesus.

Cenas

Projekta “Pastnieku nams” 74 studio tipa dzīvokļi pieejami cenu diapazonā no 50 000 līdz 100 000 EUR, savukārt 12 divistabu (vienas guļamistabas) dzīvokļi – 100 000 EUR–140 000 EUR. 

Apkaime

“Pastnieku nams” atrodas pašā Rīgas sirdī – Vecrīgas malā ar skatu uz Daugavu. Dzīvokļi ir lieliski piemēroti īstermiņa izīrēšanai vai studentiem, jo netālu ir Centrāltirgus, “Rail Baltica” laukums, tirdzniecības centrs “Origo”, Pēterbaznīca, kā arī autoosta, dzelzceļa stacija un sabiedriskā transporta pieturas.

Vēsture

Šai Vecrīgas apkaimei ir bagātīga vēsture – tirgoņu, baņkieru un ceļotāju rajons. “Pastnieku nama” dzīvokļu ēka atrodas blakus Rīgas pirmajam zirgu pastam (un kādreiz kalpojusi par ēku, kurā pastnieki ir uzturējušies pa nakti, lai no rīta turpinātu ceļu), un atsauce uz zirgiem ir vērojāma ēkas koplietošanas telpu dekorācijās.