Home
About project
Apartments
Floor plans
Prices
Contacts
lv
en
Home
About project
Apartments
Floor plans
Prices
Contacts
← Back to floors list
← Previous
Next →
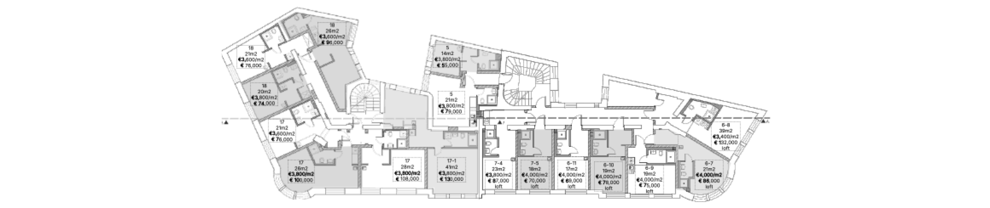
3 rd floor